I w

Stanovi

Stan 12

Somborska 43-47

S12 4
Group

STANOVI

aktuelna ponuda stanova - Stan 12

1. sprat

Informacije o objektu:

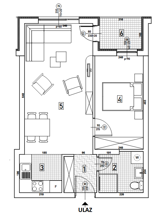
Na prodaju dvosoban stan od 47,77 m2 u okviru našeg novog projekta na Telepu, na adresi Somborska 43-47 u Novom Sadu.

Stan se odlikuje izuzetno funkcionalnim rasporedom i sastoji se iz spavaće sobe,  kupatila, kuhinje, dnevnog boravka sa trpezarijom, lođe.

Postoji mogućnost i kupovine garažnog mesta.

Moguć povrat PDV-a.

Za sve dodatne informacije i zakazivanje prezentacije nepokretnosti pozovite nas!

Površina

47,77

Struktura

Dvosoban

Orijentacija

ulično sever

Parking

Mogućnost kupovine
garažnih mesta

Lift

Balkon

* Konačan izgled i kvadratura može se razlikovati od rendera. Prikaz je samo ilustracija i predstavlja vizuelni koncept prostora. Moguće su promene u rasporedu, materijalu i drugim detaljima tokom realizacije projekta. 

Group

UPIT

Zatražite ponudu

Zanima Vas cena ovog stana ili lokala? Popunite formu i ubrzo ćemo Vam poslati sve potrebne informacije.

spremni za novi dom?

Kontaktirajte nas i saznajte više o našim ekskluzivnim ponudama!