I w

Stanovi

Stan 10

Somborska 43-47

S10 4
Group

STANOVI

aktuelna ponuda stanova - Stan 10

1. sprat

Informacije o objektu:

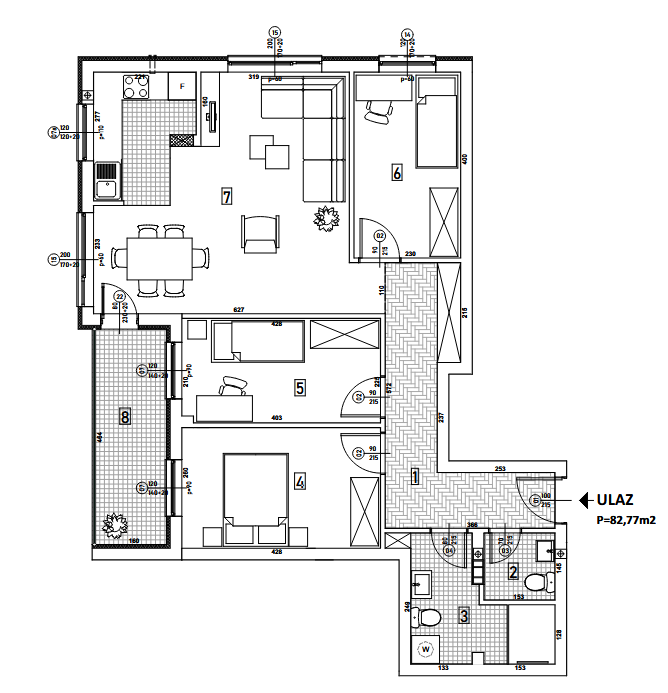
Na prodaju četvorosoban stan od 85,33 m2 u okviru našeg novog projekta na Telepu, na adresi Somborska 43-47 u Novom Sadu.

Stan se odlikuje izuzetno funkcionalnim rasporedom i sastoji se iz tri spavaće sobe, wc-a i kupatila, dnevnog boravka sa trpezarijom i kuhinjom, lođe.

Postoji mogućnost i kupovine garažnog mesta.

Moguć povrat PDV-a.

Za sve dodatne informacije i zakazivanje prezentacije nepokretnosti pozovite nas!

Površina

85,33

Struktura

Četvorosoban

Orijentacija

Bočno ulično, zapad-sever

Parking

Mogućnost kupovine
garažnih mesta

Lift

Balkon

* Konačan izgled i kvadratura može se razlikovati od rendera. Prikaz je samo ilustracija i predstavlja vizuelni koncept prostora. Moguće su promene u rasporedu, materijalu i drugim detaljima tokom realizacije projekta. 

Group

UPIT

Zatražite ponudu

Zanima Vas cena ovog stana ili lokala? Popunite formu i ubrzo ćemo Vam poslati sve potrebne informacije.

spremni za novi dom?

Kontaktirajte nas i saznajte više o našim ekskluzivnim ponudama!