Group

Stanovi

SOMBORSKA 43-47

Pregledajte slobodne lokale i stanove i nađite svoj idealan dom ili radni prostor

Rok završetka - 12. 2026. godine

Group

MATERIJALI

Specifikacija planiranih materijala i opreme

  • Materijali – toplotna zaštita i zvučna izolacija
  • Podovi i plafoni – termoizolovani
  • Bojler – Ariston Velis
  • Fasada – HPL ploče (boja starog oraha + demit fasada)
  • Sanitarije – Peštan
  • Grejanje – gas
  • PVC Prozori – TROCAL, 5 komorni
  • Podovi – keramičke pločice Španija/Italija i parket Tarkett
  • Lift – KLEEMANN
  • Inverter klima – BERGEN.
  • Slavine – Grohe

Napomena

Investitor zadržava pravo da u toku izgradnje ugradi druge materijale i opremu uz zadržavanje istog ili približno istog kvaliteta odnosno standarda sa onima koji su ovde naznačeni, osim ukoliko materijali i oprema takvog kvaliteta i standarda nisu dostupni na tržištu ili postoje drugi opravdani razlozi.

Full car parking lot mall 1
Group

POGODNOSTI

MOGUĆNOST KUPOVINE GARAŽNIH MESTA

U ponudi su garažna mesta u suterenu stambene zgrade, površine od 12 do 19 m². Idealan prostor za sigurno parkiranje i zaštitu Vašeg vozila. Lokacija je lako dostupna, a ulaz u garažu obezbeđen.

Group

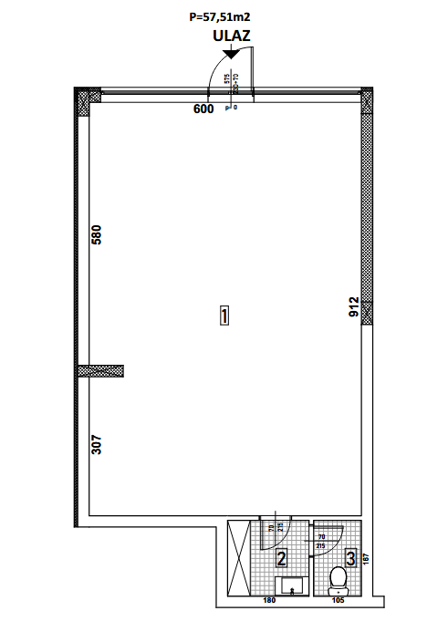
STANOVI I LOKALI

aktuelna ponuda lokala i stanova - prizemlje

SAVRŠENA LOKACIJA ZA VAŠ BIZNIS
uz mogućnost adaptiranja prostora prema Vašim potrebama i željama

L5

L5 (3)

417,80m2

Stanje

Dostupno

Lokacija

Somborska 43-47

Sprat

Prizemlje

Sobnost

Lokal

L4

L4 (3)

59,29m2

Stanje

Dostupno

Lokacija

Somborska 43-47

Sprat

Prizemlje

Sobnost

Lokal

L3

L3 (3)

74,31m2

Stanje

Dostupno

Lokacija

Somborska 43-47

Sprat

Prizemlje

Sobnost

Lokal

L2

L2 (3)

52,59m2

Stanje

Dostupno

Lokacija

Somborska 43-47

Sprat

Prizemlje

Sobnost

Lokal

Group

STANOVI I LOKALI

aktuelna ponuda stanova - 2. sprat

spremni za novi dom?

Kontaktirajte nas i saznajte više o našim ekskluzivnim ponudama!